Kansas City, MO
Budget: $6,500,000.00
2002
Northgate Middle School was renovated in the summer of 2002 as part of the “Cool Schools bond program. A district-wide study was developed to determine the most cost-effective cooling methods for the district. This study determined that rooftop units met the criteria of the School District in the best and most cost-effective manner. The district bid and purchased in quantity rooftop units to cover each year’s needs. Ductwork was designed to be concealed in abandoned chases, tunnels, or newly created chases. New ceilings with efficient lights were provided to conceal the ducts.
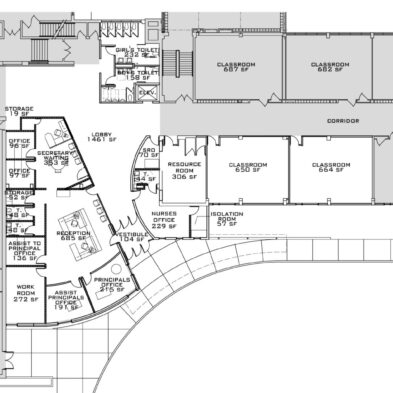
In addition to the HVAC needs, this school required the addition of a new entry, new administration, 2 new music classrooms, 2 new art classrooms, 2 new general classrooms, and a library/media center to meet MSIP standards. The new entry served a fundamental need in providing better building security, as well as providing better circulation. The new administration area included a new nurses area, a guidance center, and general offices for the school administrators.
The addition of a new, large Media Center designed to MISP standards included a new computer classroom, storage, conference room, and work room. An elevator was added to the three-story building to provide ADA access to the entire building. New double-pane insulated windows replaced existing single-pane windows throughout the school. Window exposures are reduced and limited to make the buildings perform more efficiently.



















